Floberg Bussum Makelaardij

K.P.C. de Bazelstraat 67

€ 950.000,- k.k.

Informatie

In een gewilde en kinderrijke woonomgeving in Bussum ligt deze instapklare, uitgebouwde jaren ’30 tussenwoning met verrassend veel leefruimte. Op korte afstand bevinden zich een buurtsupermarkt, kinderdagverblijf en basisschool.
De woning combineert authentieke charme met modern wooncomfort en is uitstekend geïsoleerd en voorzien van zonnepanelen, wat het tot een comfortabele en energiezuinige woning maakt.

Indeling

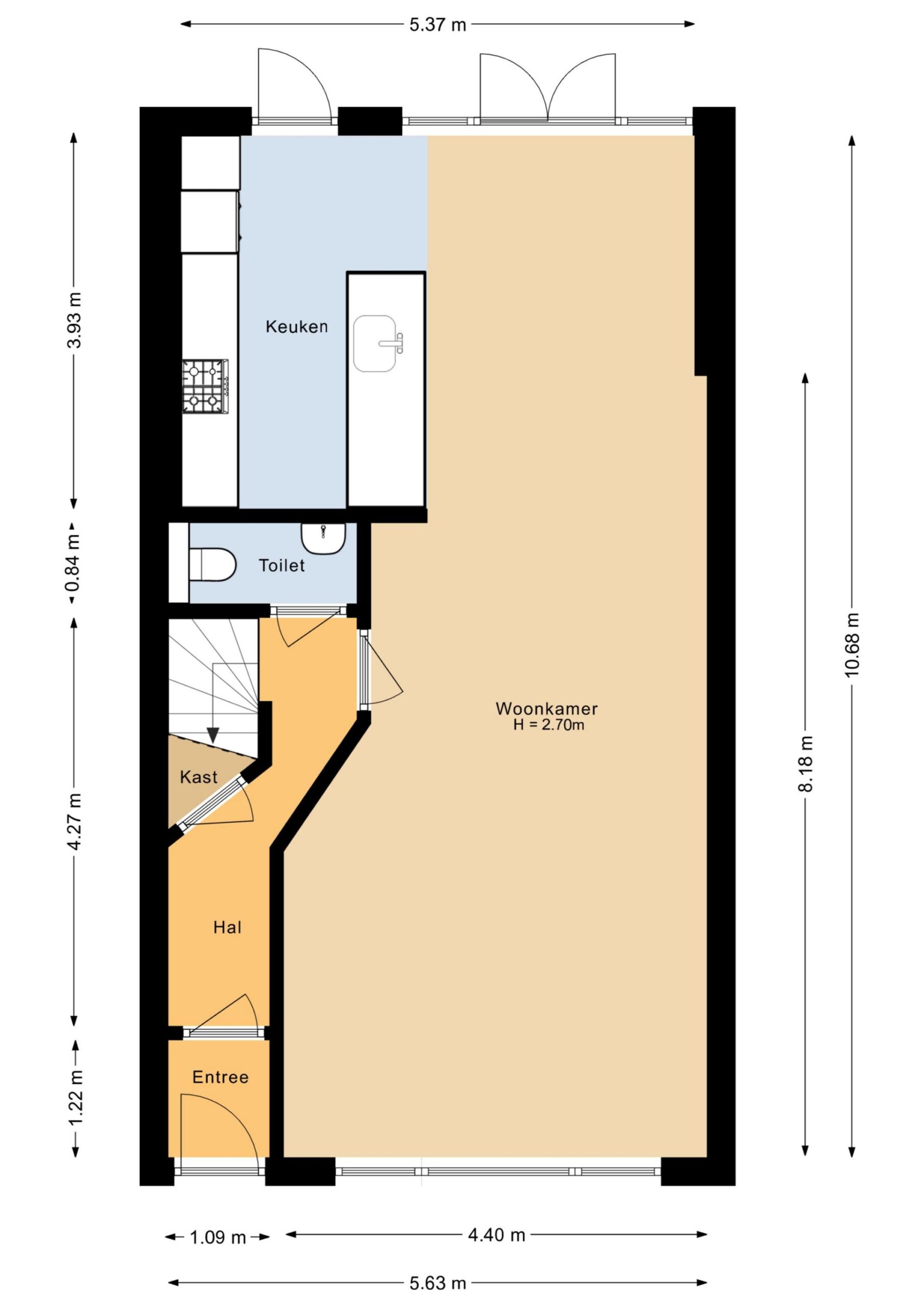
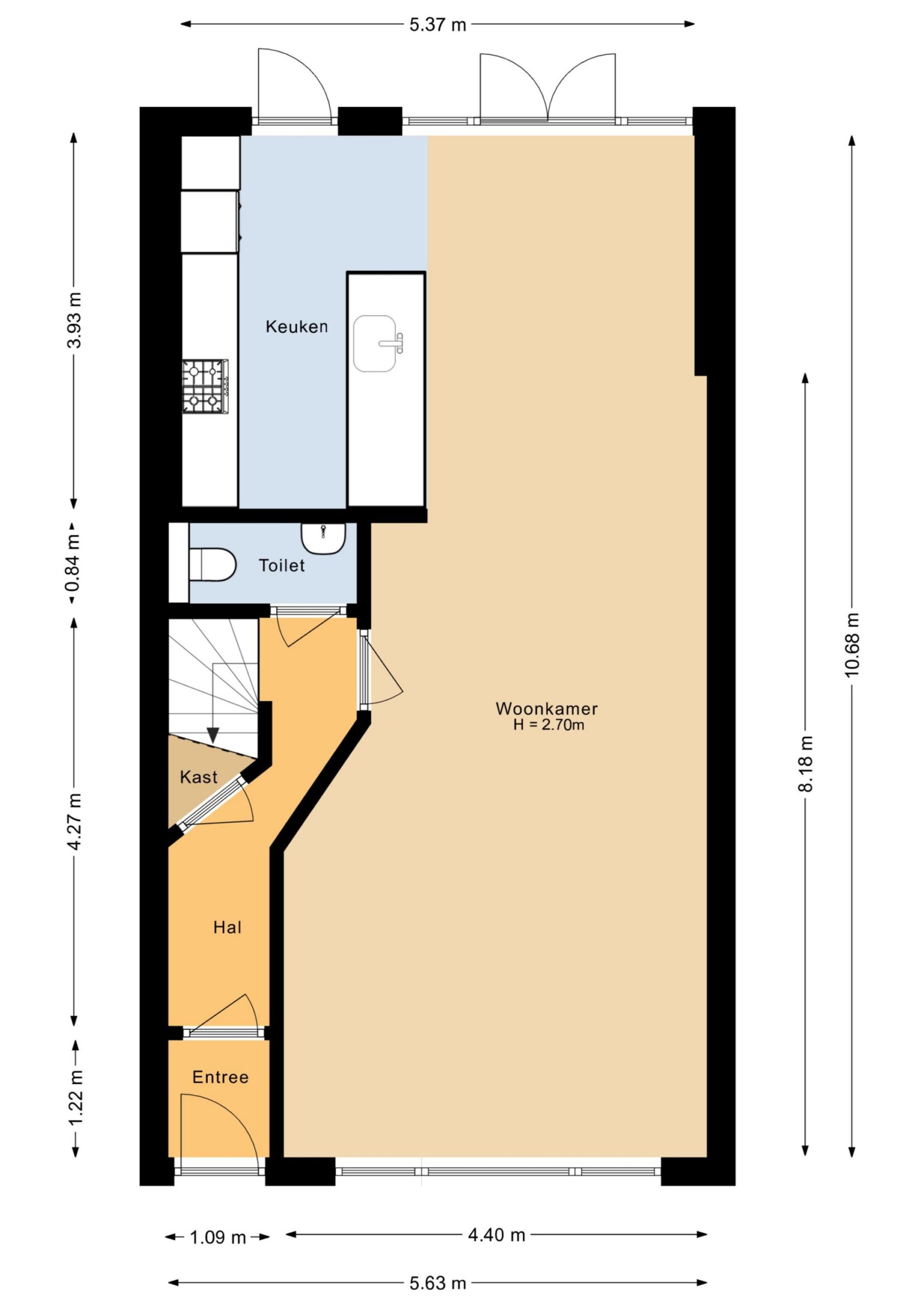
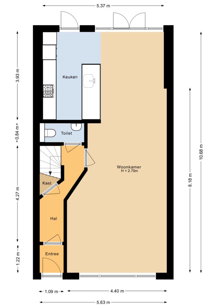
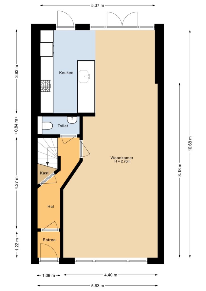
Begane grond
Entree, hal met trapkast, modern toilet met fonteintje en toegang tot de lichte woonkamer. De uitgebouwde woonkamer biedt een ruime leefruimte van circa 40 m² en is voorzien van een houten parketvloer.
De moderne open keuken is compleet uitgerust met inbouwapparatuur, waaronder een 5-pits gaskookplaat, koel-/vriescombinatie, combimagnetron, aparte tweede oven, vaatwasser en Quooker. Een fijne, gezellige plek waar koken en tafelen samenkomen. Dankzij de uitbouw met openslaande deuren naar de tuin geniet u hier van veel daglicht.

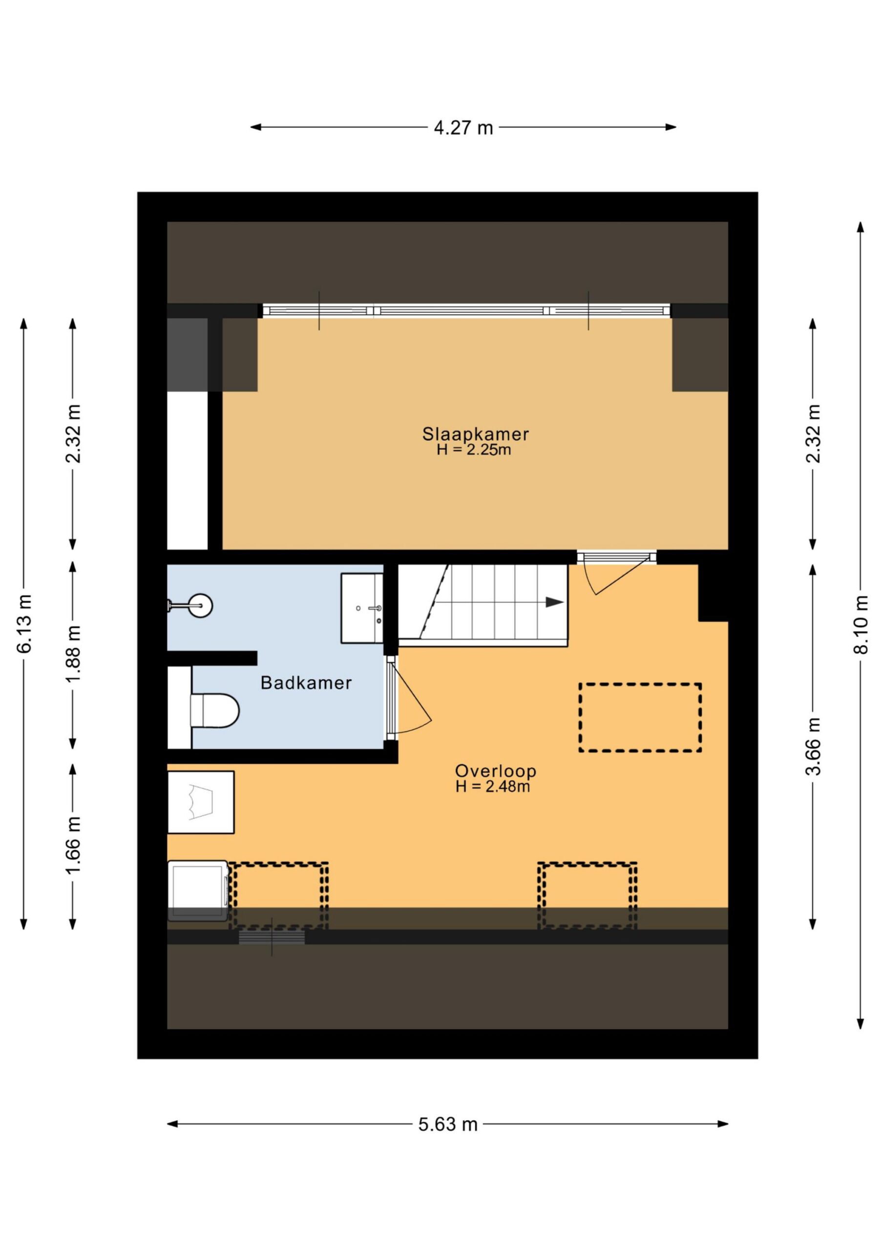
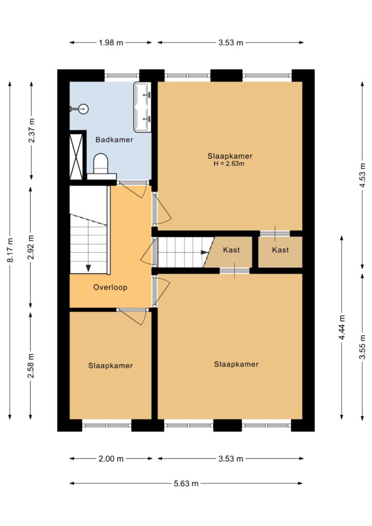
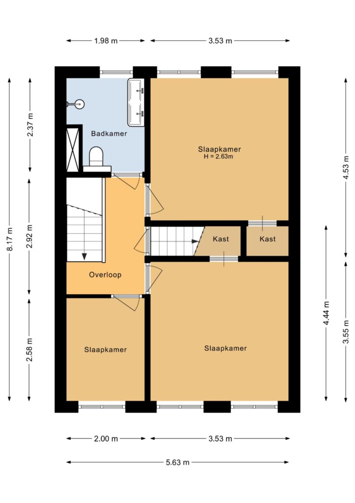
Eerste verdieping
Overloop. Een kleinere slaapkamer, een tweede slaapkamer met vaste kast en een derde ruime slaapkamer met vaste kast en airconditioning. Moderne badkamer met inloopdouche, toilet, dubbel wastafelmeubel en vloerverwarming.

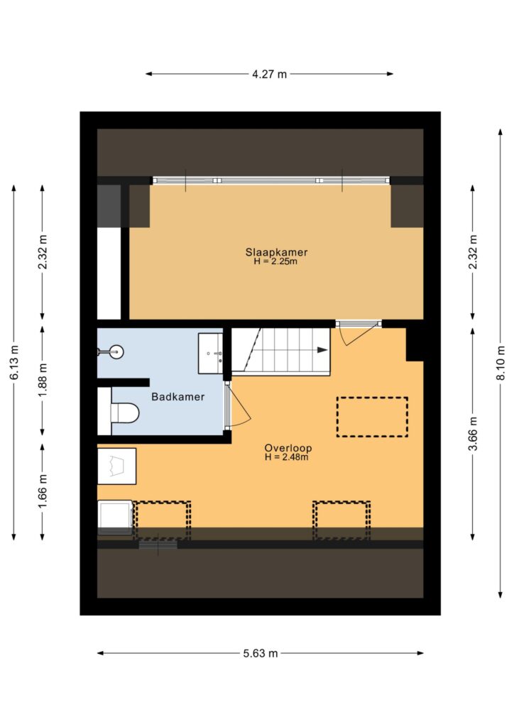
Tweede verdieping
Lichte voorzolder met wasmachine- en drogeraansluiting. Ruime vierde slaapkamer met dakkapel. Tweede badkamer voorzien van inloopdouche, wastafel en toilet. Aan beide zijden van de kap bevinden zich knieschotten met praktische bergruimte.

Vliering
Via een houten vlizotrap is de bergvliering met cv-opstelling (Nefit combi) bereikbaar.

Buitenruimte
De woning beschikt over een stenen berging en een beschutte achtertuin waar u in alle rust kunt genieten. De ligging is gunstig ten opzichte van winkels, scholen, openbaar vervoer en uitvalswegen. Ook natuur- en recreatievoorzieningen bevinden zich op korte afstand.

Bijzonderheden
• Woonoppervlakte 137 m²
• Bodem-, dak- en gevelisolatie
• Energielabel A
• Airconditioning in achterslaapkamer
• 9 zonnepanelen

Een comfortabele, energiezuinige gezinswoning met karakter, gelegen op een aantrekkelijke locatie in Bussum.