Floberg Bussum Makelaardij

Papaverstraat 29

Verkocht onder voorbehoud

Informatie

Een ruime hoekwoning met ruime schuur, een parkeerplek in eigen achtertuin. Verschillende voorzieningen op korte afstand zoals: basisschool; De Hoeksteen, kinderdagverblijf; De Kindervilla, de supermarkt, de kapper en de tandarts. Daarnaast is het ideaal gelegen ten opzichte van de uitvalsweg A1, met goede verbindingen naar Amsterdam, Schiphol, Utrecht en Amersfoort. Natuurgebieden en het NS-station Bussum-Zuid vindt u ook in de directe omgeving.

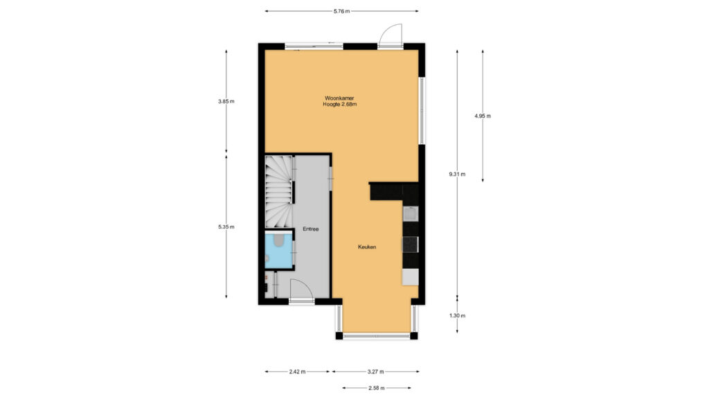
Begane grond:
Entree, hal, meterkast, modern zwevend toilet met fonteintje en bergkast. Woonkamer met vloerverwarming en grote schuifpui over de gehele achterzijde naar de achtertuin; waardoor er veel licht naar binnen komt. Eetkeuken met vloerverwarming, erker aan de voorzijde en voorzien van complete inbouwapparatuur zoals een inductieplaat, afzuigkap, ijskast met 3 vrieslade (AEG) en afwasmachine (Bosch).

1ste verdieping:
Ruime overloop, 1ste grote slaapkamer aan de voorzijde (voorheen 2 slaapkamers), 2de grote slaapkamer aan de achterzijde, ruime badkamer voorzien van vloerverwarming met inloopdouche, dubbel wastafel meubel en 2e zwevend toilet.

2de verdieping:
Vaste trap naar grote 3de slaapkamer aan de voorzijde met dakkapel, aan de achterzijde grote ruimte met aansluiting voor wasmachine en droger, HR combiketel, bergruimte achter de knieschotten en een open vliering. Deze 2de verdieping biedt de mogelijkheid om twee aparte slaapkamers en een badkamer te realiseren.

Kenmerken:
– heerlijk licht en instap klaar gezinshuis;
– woonoppervlakte 145 m²;
– perceel oppervlakte 250 m²;
– parkeerplek in achtertuin, te bereiken d.m.v. schuifpoort.
– achtertuin op het oosten, voortuin op het westen;
– druppel installatie in de voortuin;
– sproei installatie achtertuin;
– 13 zonnepanelen (11 uit 2021 en 2 uit 2023);
– alarminstallatie;
– woonkamer en eetkeuken voorzien van screens;
– WTW in leefruimtes en badkamer (douche-WTW) en vloerverwarming begane grond (woonkamer en eetkeuken);
– cv HR-combiketel Bosch 2010;
– energielabel A + geldig tot 13-10-2035;
– groepenkast elektra 8+2 en elektra aansluiting voor de auto;
– glasvezel;
– voorbehoud gunning eigenaar;
– oplevering in overleg.